2020 SW Salmon St, 403, Portland, OR 97205
2020 SW Salmon St, 403, Portland, OR 97205
BIG Private Balcony!
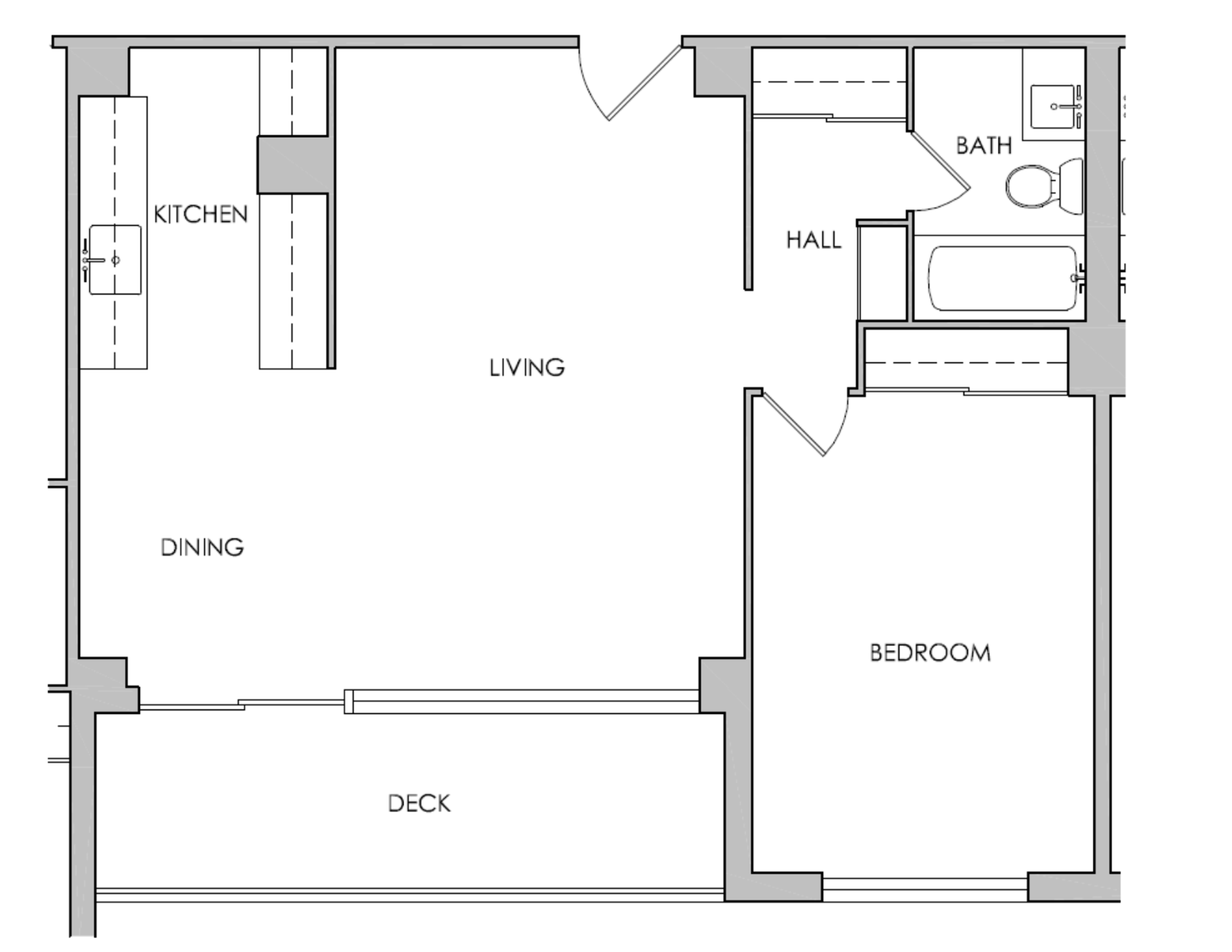
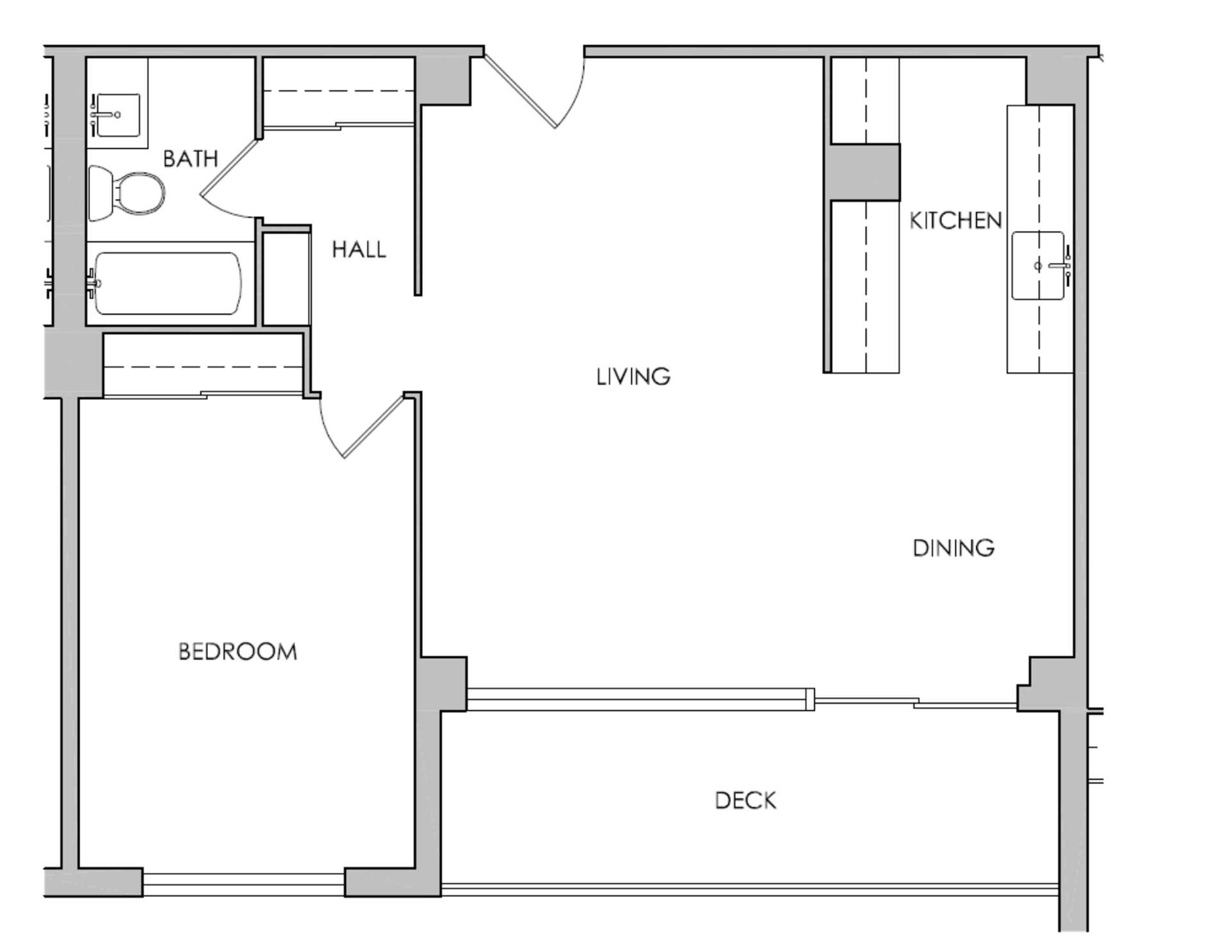
Welcome to our stunning 1-bedroom apartment located in the desirable Goose Hollow neighborhood of Portland. This apartment offers a private balcony, allowing you to enjoy the fresh air and beautiful city views. Step inside and be greeted by the elegant wood plank flooring that adds a touch of sophistication to the space. The bedroom features carpeting and a large closet, providing a cozy and comfortable atmosphere. The kitchen boasts modern stainless steel appliances, perfect for preparing delicious meals. Whether you're a culinary enthusiast or simply enjoy the convenience of high-quality appliances, you'll love the functionality and style they bring to your home. With its prime location, you'll have easy access to a variety of dining, shopping, and entertainment options. Immerse yourself in the vibrant city life or explore the nearby parks and outdoor recreational areas. Don't miss out on this incredible opportunity to call this apartment your new home. Contact us today for more information!
Contact us:





























